The project proposes a new construction of a mixed-used transit-oriented development. Project includes a medium low 6-story multi-family building over commercial space with 15 parking spots.

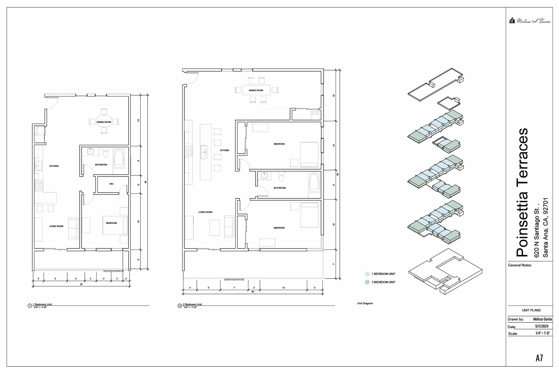
Poinsettia Terraces is a visionary mixed-use project that seamlessly integrates dynamic terraces with lush greenery to foster an inviting communal space that encourages interaction and nurtures a strong sense of community. These carefully designed terraces act as natural gathering spots, facilitating social encounters among residents and cultivating meaningful connections and a shared sense of belonging. In addition to the captivating terraces, this development boasts an array of amenities strategically located on the Podium level to enhance residents’ quality of life. These amenities include a lounge area for relaxation, dedicated office spaces for work or meetings, a versatile community room for gatherings, a refreshing pool for leisure, a serene meditation garden for tranquility, a rooftop barbecue area for social events, and a well-equipped gym for fitness enthusiasts—each tailored to cater to diverse interests and needs. On the ground floor, residents and visitors can enjoy a vibrant mix of activities and services designed to enrich daily life. From a charming flower shop and an organic market offering local produce to a serene yoga studio and an inviting bookstore, these amenities contribute to a lively and engaging atmosphere within the community. The residential floors feature thoughtfully designed one-bedroom and two-bedroom units, meticulously crafted to optimize space and comfort. These living spaces provide residents with a peaceful retreat while ensuring easy access to the development’s dynamic amenities and communal spaces. Poinsettia Terraces embodies more than just a residential building; it represents a lifestyle centered around community, wellness, and connectivity. With its innovative design and comprehensive amenities, this project sets a new standard for modern urban living, offering residents a harmonious blend of convenience, comfort, and a vibrant social environment. It’s a place where residents can truly feel at home and part of a thriving community.




Site project is location in the lower left side by Santiago Street

Upper terrace view

Outdoor View 

Meditation Garden View

1 Bedroom Unit - Interior View

Physical model in site ( 3D laser-cut model) 

Back to Top